
About this property
Park Town offers a collection of spacious apartments and townhouses featuring breathtaking views of the lush green expanses at DAMAC Hills. Positioned next to the Arcadia golf course, each home is designed with large windows and terraces to flood interiors with natural light, blending modern luxury with a serene natural setting.
Features & Amenities
Landscaped Gardens
Pool
Gym
Kids Play Area
Malibu Bay Wave Pool Access
Petting Farm & Horse Stables
Fishing Lake & Green Spaces
Property Location
Loading map...
Park Town at DAMAC Hills
DAMAC Hills, Dubailand, Dubai
Ready
Property Types
Apartment
Townhouse
DeveloperDamac
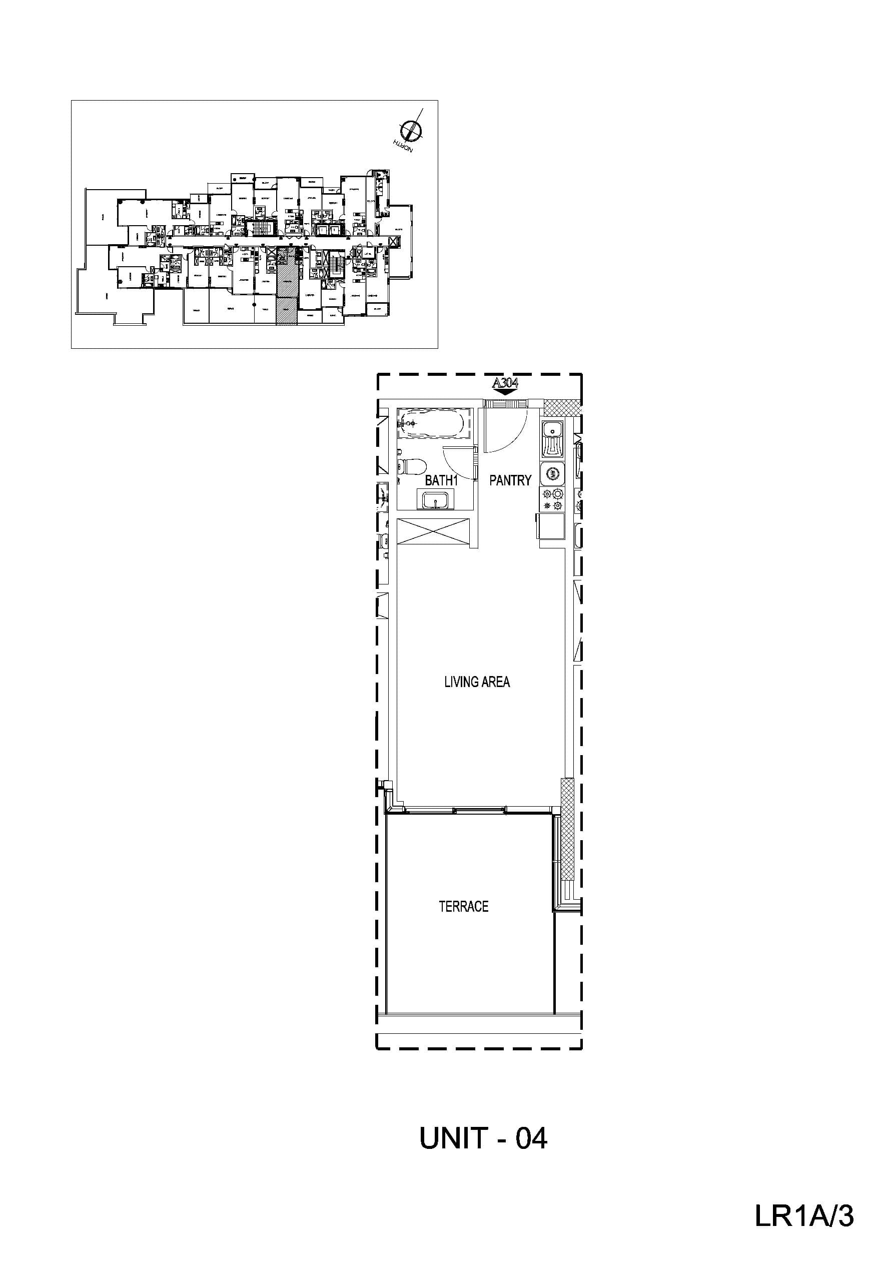
Select Unit Type
Studio ApartmentPark Views956,350 AED
Starting FromAED956,350
Area641Sq.Ft
Floor Plan

Asking Price
AED956,350
Ready
DAMAC Hills, Dubailand, Dubai
Select Your Agent

Okyanus Özkan Ulusoy
CEO & Co-Founder
High Demand Property
