
حول هذا العقار
يقف بن غاطي فينيكس كشاهد على البراعة المعمارية في قلب قرية جميرا الدائرية، حيث يتميز بخطوط خارجية انسيابية تجسد إيقاع الحياة الطبيعي. يتكون المشروع من 10 طوابق تضم 434 وحدة سكنية مصممة بدقة و30 محلاً تجارياً لتوفير تجربة معيشية حيوية ومريحة.
الميزات والمرافق
مواقف سيارات
أمن
محلات تجارية
طابق السطح
مفروش بالكامل
خطوط معمارية انسيابية
إمكانات عائد استثمار قوية (حوالي 6.5٪)
الموقع
جار تحميل الخريطة...
بن غاطي فينيكس
المنطقة 13، قرية جميرا الدائرية، دبي
جاهز
أنواع العقارات
Apartment
المطورBinghatti
اختر نوع الوحدة
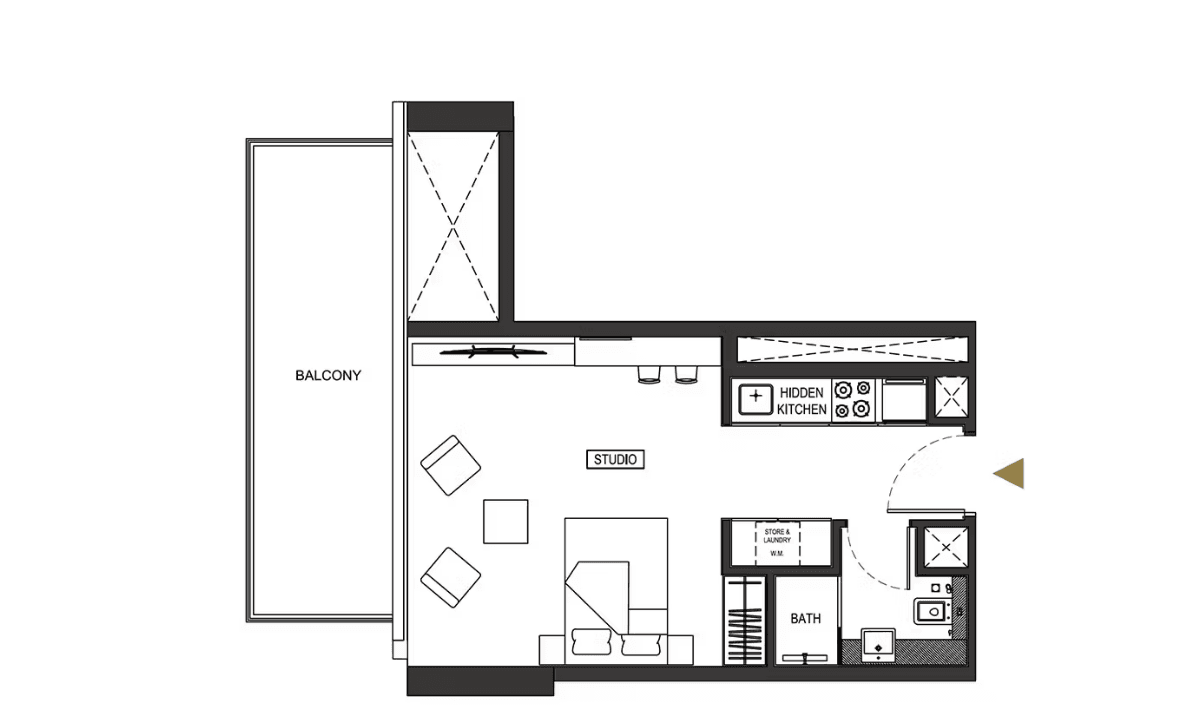
Studio ApartmentPrice upon Request
يبدأ منالسعر عند الطلب
المساحة-
مخطط الطابق

سعر الطلب
السعر عند الطلب
Ready
المنطقة 13، قرية جميرا الدائرية، دبي
اختر مستشارك

Okyanus Özkan Ulusoy
الرئيس التنفيذي والمؤسس
عقار عالي الطلب
